Bonthuis Vaartjes Makelaars
Bonthuis Vaartjes Makelaars

Een goed
gevoel bij

Havenhuis

€ 450.000,-

  • 111 m2 t/m 117 m2
  • 100 m2 t/m 268 m2

Omschrijving

De verkoop is gestart!

Belangrijke data op een rij:
Inschrijving start: 17 februari 2026 om 15:00 uur. Je kunt je vanaf nu inschrijven op je favoriete woningen.
Inschrijving sluit: 24 februari 2026 om 15:00 uur. Nog wat aanpassen in je wensenlijst? Je hebt tot dit moment om je voorkeuren te wijzigen.
Toewijzing: 25 februari. Spannend! Dan hoor je of je een woning toegewezen hebt gekregen of niet.

In dit karakteristieke Havenhuis heb je direct zicht op de haven en alle sloepjes, zeilbootjes en passanten. Vanaf het unieke terras op de 2e verdieping geniet je van de ondergaande zon op een fijne zomeravond en geniet je met zicht op de haven van het echte eilandleven.

Een heerlijk huis
De hal verwelkomt je thuis met het toilet, de meterkast en trap naar boven. Dan betreed je de ruime woonkamer. Voel de magie van dit Havenhuis. De open keuken in rechte opstelling ligt aan de voorzijde. Hier drink je je ochtendkoffie terwijl je de groene buurt ziet ontwaken. Bereid er de favoriete maaltijden van de kinderen. De woonkamer aan de achterzijde wordt de plek om tot rust te komen. Geniet er van een goed boek of spannende film. Deze slim doordachte scheiding tussen de levendige voorkant en rustige achterkant geeft je het beste van twee werelden.

Wat een mogelijkheden
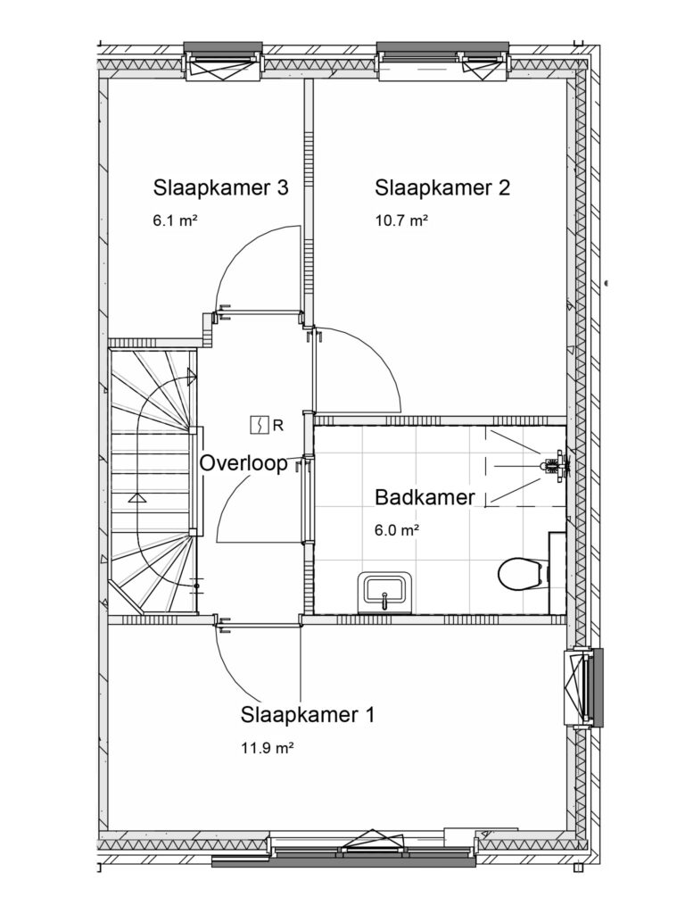
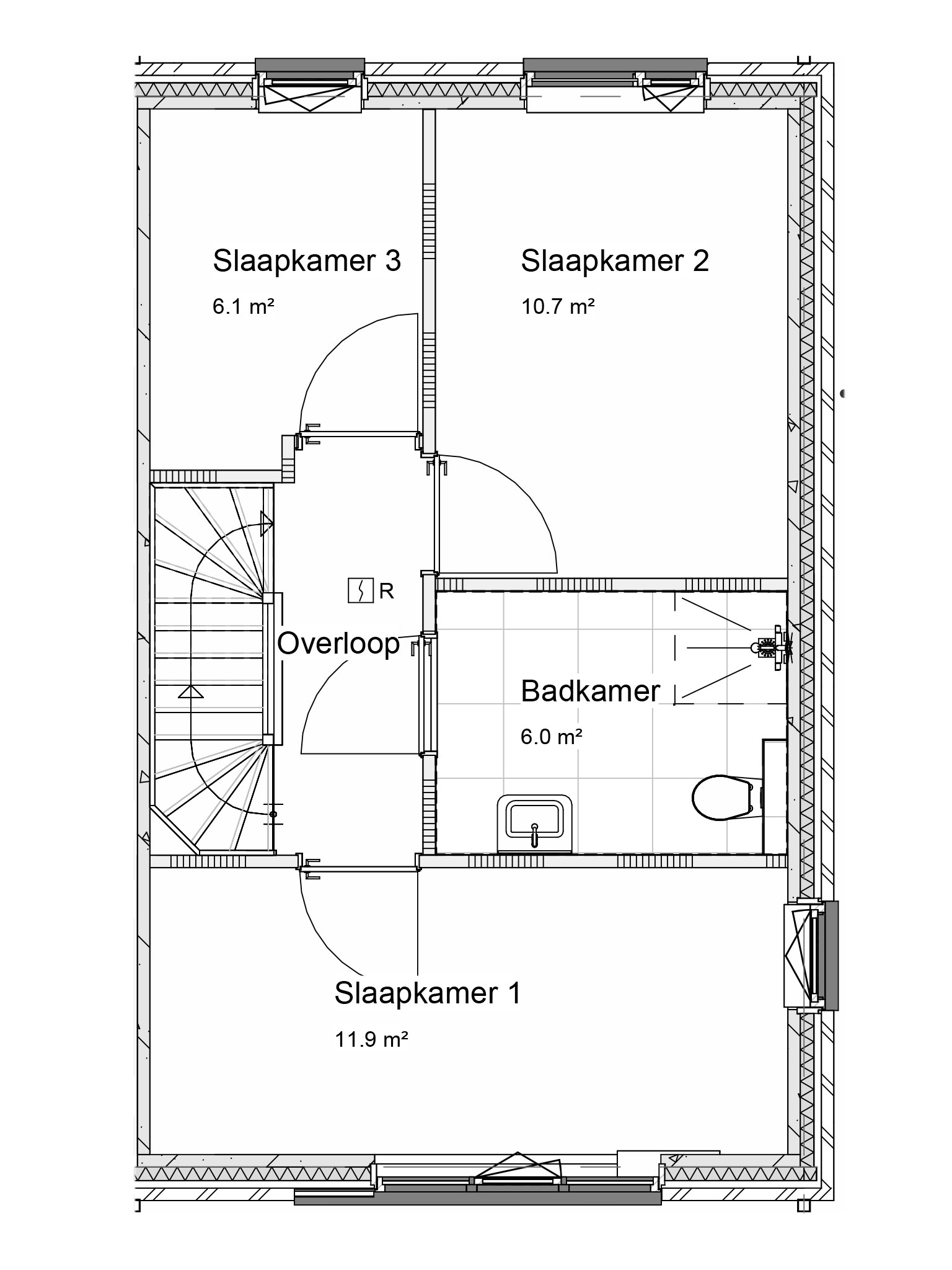
Via de overloop op de 1e verdieping ontdek je 3 slaapkamers in verschillende groottes. Ze sluiten perfect aan op ieders behoeften. De badkamer combineert functionaliteit met comfort. Een heerlijke douche, wastafel en dat handige 2e toilet maken de ochtendspits een stuk relaxter. Maar het echte avontuur speelt zich af op de 3e etage, waar de zolder wacht op jouw creatieve invulling. Met aansluitingen voor wasmachine en droger is het praktische geregeld. En dan is er nog dat overdekte terras. Een buitenruimte waar je bij elke weersomstandigheid kunt genieten van de frisse lucht.

Bouwnummers

Benieuwd wat jij kan lenen?

Altijd al willen wonen in …

Kampen

Kampen is een eeuwenoude Hanzestad aan de IJssel. De stad heeft een historisch centrum met karakteristieke straten en monumentale panden. Daaromheen liggen sfeervolle dorpen en uitgestrekte weiden. Het prachtige groen, de vele voorzieningen en de goede infrastructuur zorgen samen voor een unieke mix van rust en levendigheid.

Genemuiden

Genemuiden, ook wel de ‘tapijtstad’ genoemd, staat bekend om de rijke geschiedenis in de textielindustrie. De stad combineert historische charme en lokale tradities met moderne voorzieningen en een gezonde ondernemersgeest. Samen met de prachtige natuur is het een heerlijke plek om te wonen, werken en ontspannen.

Zwartsluis

Zwartsluis is een sfeervol dorp aan het Zwarte Water. Het dorp heeft veel voorzieningen, zoals winkels, scholen en restaurants. Daarnaast biedt de natuurrijke omgeving volop mogelijkheden om te wandelen, fietsen en varen. Dit buitenleven geeft een gevoel van vrijheid. Het hele jaar door. Dat is nog eens fijn wonen.