Bonthuis Vaartjes Makelaars
Bonthuis Vaartjes Makelaars

Een goed
gevoel bij

Levensloopbestendige rijwoning

€ 465.000,-

  • 106 m2
  • 124 m2 t/m 189 m2

Omschrijving

Kom jij naar het verkoopevent op woensdag 18 februari?
Ben je geïnteresseerd in Haveneiland? Kom dan naar het feestelijke verkoopevent! Je bent van harte welkom om een brochure op te halen en in gesprek te gaan met de aannemer, architect en de makelaar. Stel al je vragen en ontdek de mogelijkheden. Ook de Rabobank is aanwezig om je te adviseren over financiële zaken.

Loop een rondje over de kavels en maak een boottochtje om het eiland. Ook voor de kids zijn er kleurplaten en een jeu de boulesbaan.

Alle informatie op een rij:
* Datum: woensdag 18 februari
* Tijd: 15:00-17:00 uur
* Locatie: bouwplaats Haveneiland Havenallee, Reeve
* Parkeermogelijkheid: op locatie

Belangrijke data op een rij:
Inschrijving start: 17 februari 2026 om 15:00 uur. Je kunt je vanaf nu inschrijven op je favoriete woningen.
Inschrijving sluit: 24 februari 2026 om 15:00 uur. Nog wat aanpassen in je wensenlijst? Je hebt tot dit moment om je voorkeuren te wijzigen.
Toewijzing: 25 februari. Spannend! Dan hoor je of je een woning toegewezen hebt gekregen of niet.

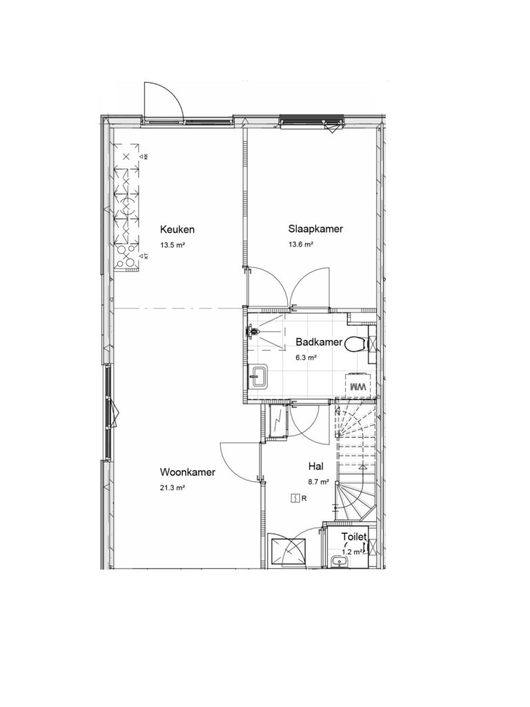
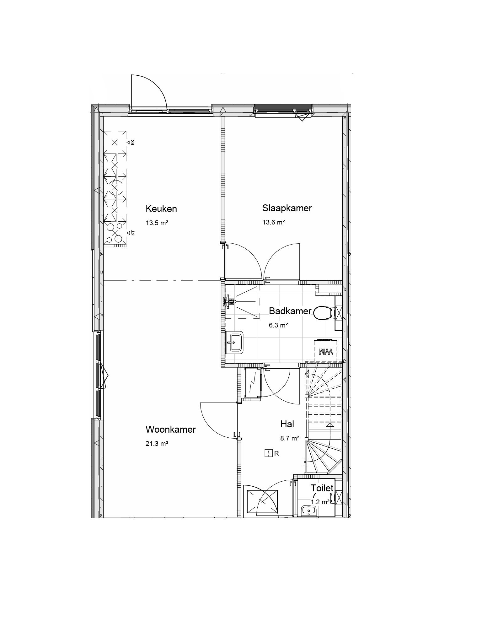
Deze levensloopbestendige rijwoning is ideaal voor nu en later. Qua indeling is er gedacht aan jouw comfort. Met de slaapkamer op de begane grond ben je van alle gemakken voorzien. Zo kun jij genieten van de rustige en groene omgeving.

Voel de verbinding
Je komt binnen in de hal met toilet en de trap naar boven. De woonkamer en keuken vormen een open verbinding met elkaar. Met het oog op gemak is er een slaapkamer en badkamer op de begane grond. Handig voor op latere leeftijd. De slaapkamer ligt aan de achterzijde van de woning, net als de keuken. Vanuit de keuken sla je zo de deur open naar de tuin gelegen op het noorden. Hier is het heerlijk koel genieten van het buitenleven. Drink er onbezorgd een kopje koffie of een goed glas wijn.

Boven is genoeg ruimte
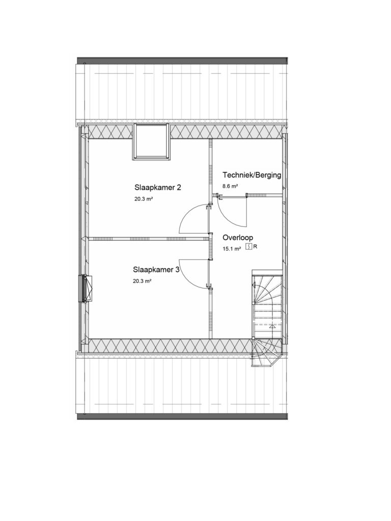
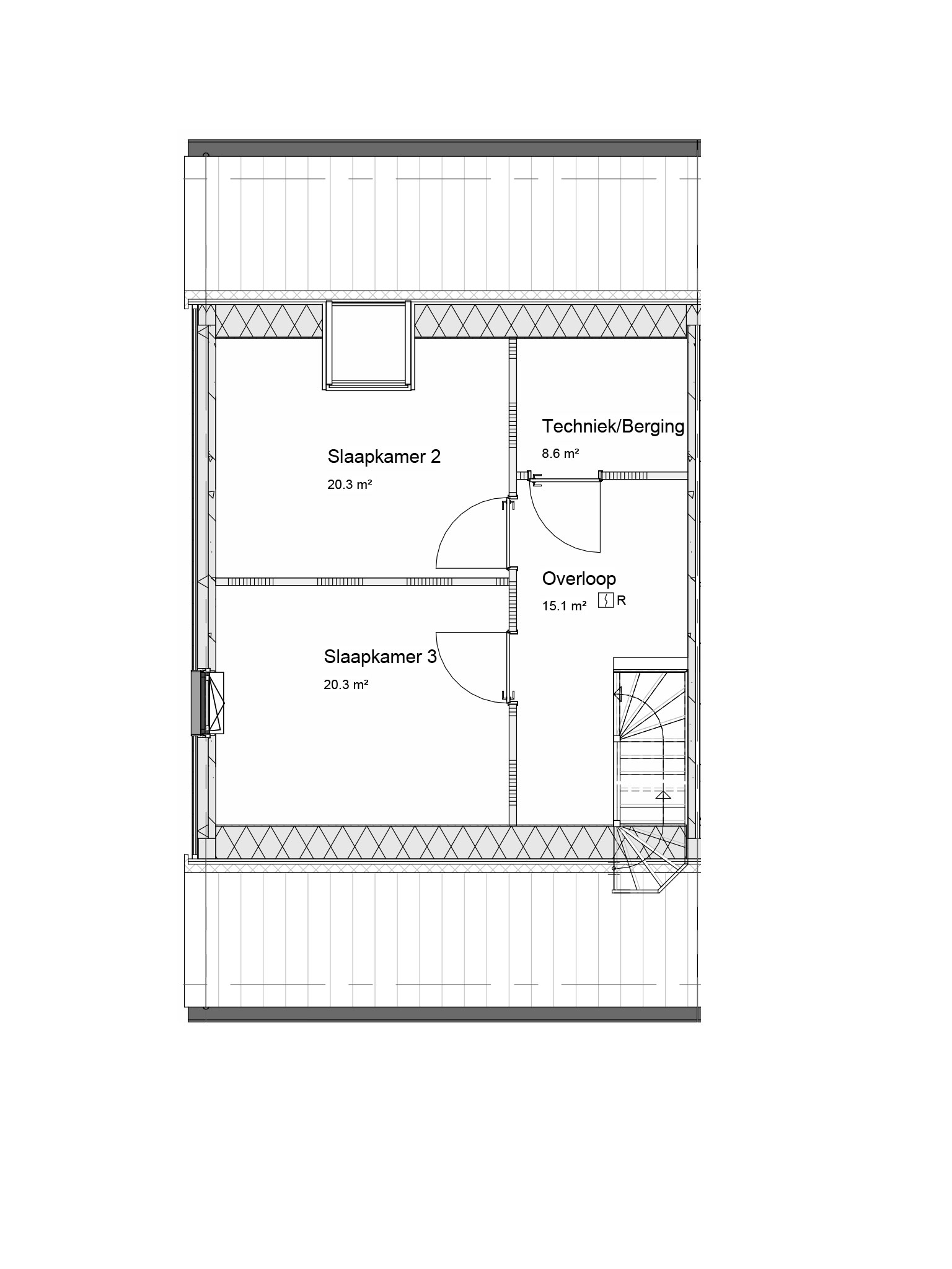
Op de 1e etage heb je via de overloop toegang tot de overige 2 slaapkamers en de technische ruimte. Door het schuine dak hebben beide slaapkamers hebben een dakraam. Kies je voor een hoekwoning, dan heeft 1 van de slaapkamers een zijraam. Hoe je de kamers gaat inrichten is geheel aan jou. Je hebt alle vrijheid. De kleinkinderen kunnen blijven slapen en de andere kamer kan ideaal zijn voor het opslaan van spullen. Voel je thuis in deze levensloopwoning die jouw gemak vooropstelt.

Bouwnummers

Benieuwd wat jij kan lenen?

Altijd al willen wonen in …

Kampen

Kampen is een eeuwenoude Hanzestad aan de IJssel. De stad heeft een historisch centrum met karakteristieke straten en monumentale panden. Daaromheen liggen sfeervolle dorpen en uitgestrekte weiden. Het prachtige groen, de vele voorzieningen en de goede infrastructuur zorgen samen voor een unieke mix van rust en levendigheid.

Genemuiden

Genemuiden, ook wel de ‘tapijtstad’ genoemd, staat bekend om de rijke geschiedenis in de textielindustrie. De stad combineert historische charme en lokale tradities met moderne voorzieningen en een gezonde ondernemersgeest. Samen met de prachtige natuur is het een heerlijke plek om te wonen, werken en ontspannen.

Zwartsluis

Zwartsluis is een sfeervol dorp aan het Zwarte Water. Het dorp heeft veel voorzieningen, zoals winkels, scholen en restaurants. Daarnaast biedt de natuurrijke omgeving volop mogelijkheden om te wandelen, fietsen en varen. Dit buitenleven geeft een gevoel van vrijheid. Het hele jaar door. Dat is nog eens fijn wonen.