Bonthuis Vaartjes Makelaars
Bonthuis Vaartjes Makelaars

Een goed
gevoel bij

Kabel 73
8281 NR Genemuiden

€ 400.000,- k.k.

  • 145 m2
  • 160 m2
  • 5

    Omschrijving

    Aan de Kabel in Genemuiden staat deze verrassend ruime en uitstekend onderhouden tussenwoning met aanbouw aan de achterzijde, een moderne keuken (2020), vloerverwarming op de begane grond en een nieuwe geïsoleerde schuur. Een woning die niet alleen praktisch is ingedeeld, maar ook direct een verzorgde en comfortabele indruk maakt.

    Kom een kijkje dichterbij nemen!
    Wanneer je de Kabel in komt rijden valt op hoe ruim de wijk is opgezet. Tegenover de woning kijk de vrij weg over één van de zijstraten. Parkeren kan op één van de parkeervakken. Via de voortuin bereik je de voordeur.

    Binnenkomen doe je in een nette entree met toilet en trapopgang. Vanuit hier loop je door naar de woonkamer aan de voorzijde van de woning. De ruimte voelt licht en open door de grote raampartijen en de rustige afwerking. De moderne (elektrische)haard vormt een sfeervol middelpunt in de woonkamer en maakt het geheel compleet. De woonkamer staat in open verbinding met de eetkamer en keuken aan de achterzijde, waardoor er een fijne leefruimte ontstaat waar koken, eten en wonen samenkomen.

    De keuken is in 2020 vernieuwd en heeft een strak en tijdloos karakter met lichte fronten en een donker werkblad. De praktische hoekopstelling biedt volop werk- en bergruimte. Vanuit de keuken loop je door naar de bijkeuken, een fijne extra ruimte voor bijvoorbeeld witgoed en extra opslag. Zowel de woonkamer, keuken als bijkeuken zijn voorzien van comfortabele vloerverwarming. De woning is aan de achterzijde uitgebouwd, waardoor er extra leefruimte is ontstaan en de begane grond bijzonder ruim aanvoelt. Via de grote schuifpui stap je zo de achtertuin in.

    Boven
    Op de eerste verdieping bevinden zich drie slaapkamers en een ruime badkamer. De badkamer is compleet uitgevoerd met een ligbad, een inloopdouche, een zwevend toilet en wastafelmeubel. De slaapkamers zijn praktisch van formaat en bieden verschillende gebruiksmogelijkheden, zoals slaap-, werk- of kinderkamer.

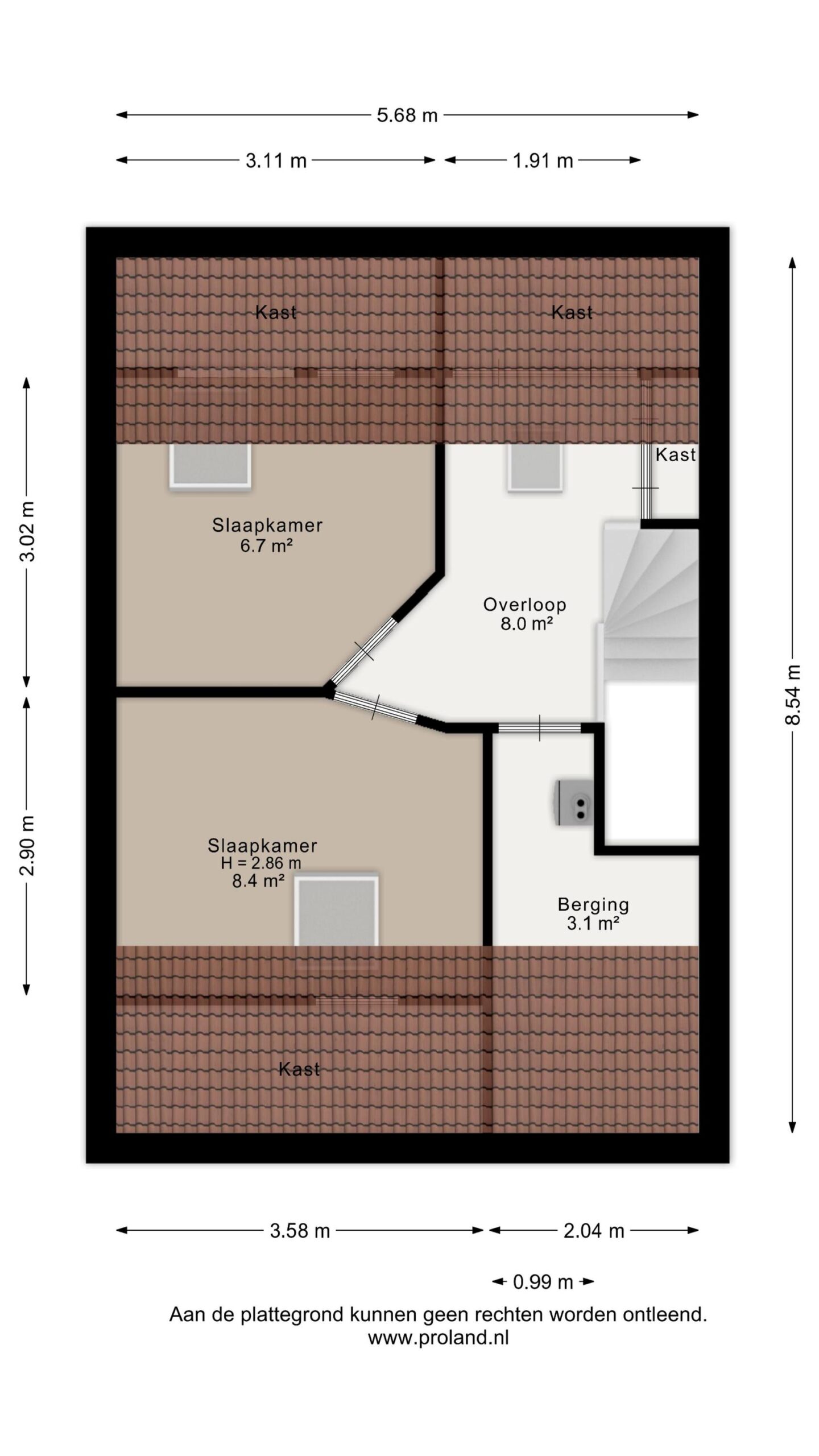
    De tweede verdieping biedt nog eens twee extra slaapkamers en een ruime overloop met bergruimte. De verdieping kent een slimme indeling zijn en de slaapkamers zijn goed bruikbaar.

    De woning is bovendien voorzien van 12 zonnepanelen, HR ++ (+) beglazing en een jonge CV-ketel, wat bijdraagt aan een lagere energierekening en een duurzamer wooncomfort.

    Buiten
    De tuin is onderhoudsvriendelijk aangelegd en biedt een fijne plek om buiten te zitten. Door de ligging op het Zuidwesten ben je gegarandeerd van veel zonuren. Achterin de tuin staat een nieuwe geïsoleerde schuur die ideaal is voor hobby, opslag of het stallen van fietsen.

    Ligging
    Ook de ligging maakt deze woning aantrekkelijk. De Kabel ligt in een rustige en kindvriendelijke woonwijk waar kinderen nog gewoon buiten kunnen spelen. Op korte afstand vind je onder andere een basisschool en een kinderboerderij, wat het een fijne plek maakt voor gezinnen. Voor dagelijkse boodschappen, winkels en andere voorzieningen fiets je in enkele minuten naar het centrum van Genemuiden.

    Ben je op zoek naar een instapklare woning met verrassend veel ruimte, een moderne afwerking en een fijne ligging in een kindvriendelijke wijk? Dan is Kabel 73 absoluut een bezichtiging waard! Neem gerust contact op met Bonthuis Vaartjes Makelaars voor een persoonlijke rondleiding, wij laten je deze woning graag van binnen zien.

    Benieuwd wat jij kan lenen?

    Kenmerken

    Overdracht
    Prijs€ 400.000,- k.k.
    AanvaardingIn overleg
    Bouw
    Type objectWoonhuis
    Soort bouwBestaande bouw
    Bouwjaar2006
    DakbedekkingPannen, Bitumineuze Dakbedekking
    Type dakZadeldak
    IsolatievormenDakisolatie, Muurisolatie, Vloerisolatie, HR glas
    Oppervlaktes en inhoud
    Perceeloppervlakte160 m2
    Woonoppervlakte145 m2
    Inhoud515 m3
    Oppervlakte overige inpandige ruimten0 m2
    Oppervlakte externe bergruimte13 m2
    Oppervlakte gebouwgebonden buitenruimte2 m2
    Indeling
    Aantal kamers6
    Aantal slaapkamers5
    Locatie
    LiggingIn woonwijk, Vrij uitzicht
    Tuin
    Type tuinAchtertuin
    KwaliteitNormaal
    OriënteringZuidwest
    Heeft een achteromJa
    Oppervlakte55 m2
    Energieverbruik
    EnergielabelA+
    CV ketel
    CV ketelIntergas
    WarmtebronGas
    CombiketelJa
    EigendomEigendom

    Ligging