Bonthuis Vaartjes Makelaars
Bonthuis Vaartjes Makelaars

Een goed
gevoel bij

Klaas Benninkstraat 52
8281 ZZ Genemuiden

€ 175.000,- k.k.

  • 77 m2
  • 62 m2
  • 3

    Omschrijving

    Ben je handig, zoek je een project of wil je graag een woning volledig naar eigen smaak verbouwen? Dan is dit een mooie kans! Aan de Klaas Benninkstraat, op een paar minuten lopen van het centrum van Genemuiden, staat deze tussenwoning met karakter én een duidelijke behoefte aan modernisatie.

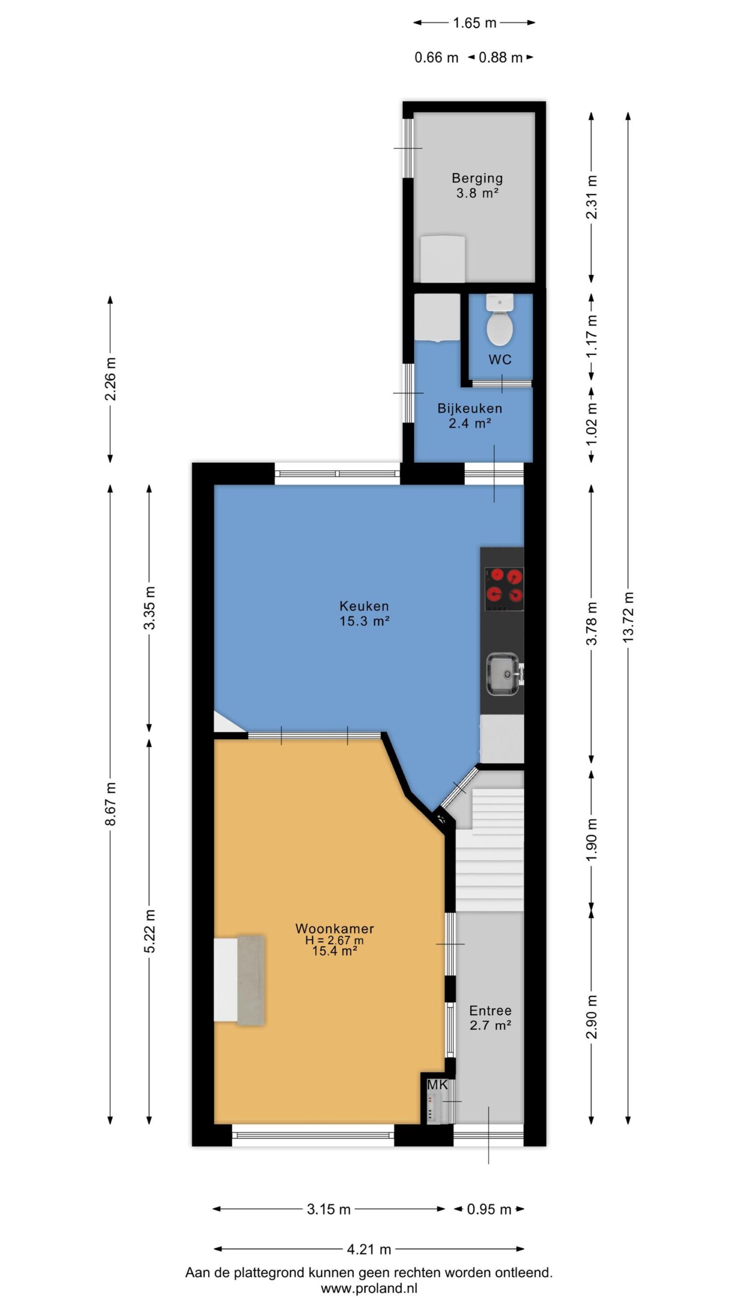
    Stap binnen bij nummer 52
    Via de voordeur kom je binnen in de hal, die toegang geeft tot de woonkamer. De doorzonkamer heeft grote ramen aan zowel de voor- als achterzijde, waardoor er veel daglicht binnenkomt. De ruimte vraagt om modernisering, maar biedt genoeg mogelijkheden om hier een fijne leefruimte te maken.

    De keuken is eenvoudig uitgevoerd en toe aan vernieuwing. Met een slimme indeling kun je hier een moderne keukenopstelling realiseren. Achter de keuken vind je de bijkeuken, het toilet en een kleine berging. Vanuit deze ruimte loop je de compacte patio in.

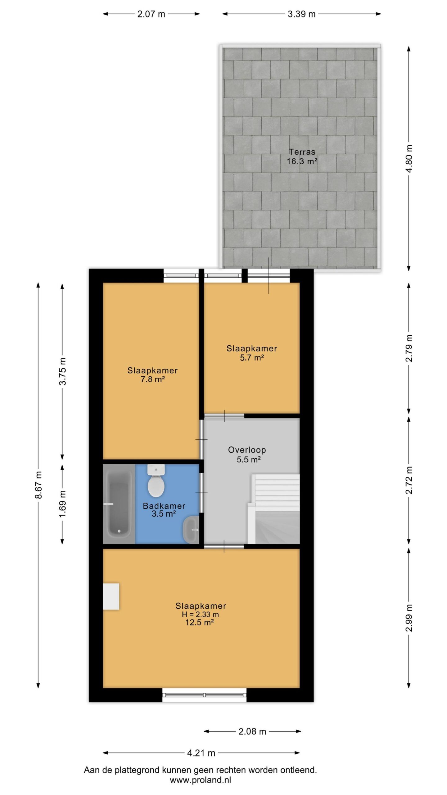
    Eerste verdieping
    Via de overloop van de eerste verdieping krijg je toegang tot drie slaapkamers en de badkamer.

    De badkamer is in de huidige opstelling voorzien van een ligbad, een toilet en een wastafel. De ruimte is functioneel, maar duidelijk toe aan renovatie. Dit biedt meteen kansen: je kunt hier helemaal opnieuw beginnen en de indeling en afwerking kiezen die bij jouw woonwensen passen. Denk aan een moderne inloopdouche, een ruimere opstelling, frisse betegeling of zelfs vloerverwarming. Met een slimme verbouwing maak je van deze badkamer eenvoudig een comfortabele en eigentijdse ruimte.

    De drie slaapkamers zijn te vinden in verschillende formaten. Met een frisse aanpak kun je de slaapkamers uitstekend inzetten als slaap-, werk- of kinderkamer.

    De achterste slaapkamer geeft direct toegang tot het grote dakterras. Op dit moment is er nog geen duidelijke afscheiding aanwezig, maar het is goed denkbaar om hier een privé terras te creëren. Met de juiste afwerking maak je van deze buitenruimte een fijne plek om buiten te zitten, midden in de stad.

    Tweede verdieping
    Via een vaste trap kom je op de tweede verdieping. Door de hoogte van 1,92 meter mag deze etage officieel niet als woonoppervlakte worden meegerekend, maar dat doet niets af aan de mogelijkheden die je hier hebt. Dankzij de brede dakkapellen ontstaat er verrassend veel ruimte en licht, waardoor deze verdieping zich goed leent voor bijvoorbeeld een werkplek, hobbyruimte of logeerkamer.

    Daarnaast is er een apart berghok aanwezig waar de cv-ketel staat. Dit maakt de verdieping praktisch in gebruik en biedt extra opbergruimte.

    Starterslening
    Als koper van deze woning kom je mogelijk in aanmerking voor een extra starterslening van de gemeente Zwartewaterland. Een starterslening biedt uitkomst wanneer je als starter de financiering van een woning niet helemaal rond krijgt. Onze adviseurs vertellen je er graag meer over.

    Jonger dan 35 jaar?
    Ben jij tussen de 18 en 35 jaar en ga je een woning kopen? Dan betaal je in 2025 eenmalig géén overdrachtsbelasting. Normaal gesproken is de overdrachtsbelasting 2% van de aankoopsom. Hiermee kun je dus mogelijk een flink bedrag besparen. Onze makelaars vertellen je er graag meer over!

    Benieuwd wat jij kan lenen?

    Kenmerken

    Overdracht
    Prijs€ 175.000,- k.k.
    AanvaardingIn overleg
    Bouw
    Type objectWoonhuis
    Soort bouwBestaande bouw
    Bouwjaar1935
    DakbedekkingPannen, Bitumineuze Dakbedekking
    Type dakSchilddak
    IsolatievormenDakisolatie, Dubbelglas
    Oppervlaktes en inhoud
    Perceeloppervlakte62 m2
    Woonoppervlakte77 m2
    Inhoud340 m3
    Oppervlakte overige inpandige ruimten20 m2
    Oppervlakte externe bergruimte3 m2
    Oppervlakte gebouwgebonden buitenruimte16 m2
    Indeling
    Aantal kamers4
    Aantal slaapkamers3
    Locatie
    LiggingIn centrum
    Tuin
    Type tuinZonneterras
    KwaliteitNormaal
    OriënteringZuidwest
    Heeft een achteromJa
    Oppervlakte10 m2
    Energieverbruik
    EnergielabelC
    CV ketel
    CV ketelNefit
    WarmtebronGas
    CombiketelJa
    EigendomEigendom

    Ligging