Een goed
gevoel bij
Boven Nieuwstraat 32 A
8261 HD Kampen
€ 225.000,- k.k.
- 110 m2
- 1
Omschrijving
Unieke kans: casco appartement met riant dakterras!
Dit te realiseren appartement is volledig naar smaak in te richten en biedt de toekomstige eigenaar een heerlijke woonruimte met riant dakterras op een toplocatie in de binnenstad!
Enkele kenmerken van het appartement:
– Circa 100 m2 woonoppervlakte
– Ruim dakterras bereikbaar via de binnenplaats
– Toilet en cv-ketel inbegrepen
– Volledig naar smaak in te delen en af te werken
– Energielabel C
– Lange, gemeenschappelijke hal met genoeg ruimte voor berging van spullen en fietsen
Er is een verleende vergunning voor de realisatie van het appartement, inclusief het dakterras. De tekeningen zijn beschikbaar. Het appartement wordt verkocht inclusief kunststof schuifpui. De woning maakt deel uit van een kleinschalige VVE.
Let op: koper dient zorg te dragen voor de de aanpassing van de trapopgang naar het bovenste appartement, Geerstraat 34-1, conform verstrekte tekeningen. Meer informatie kunt u krijgen via ons kantoor.
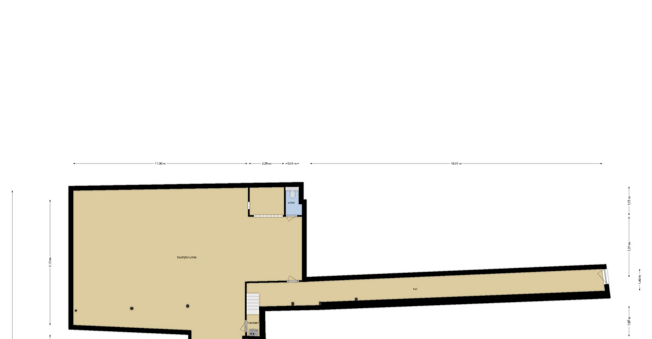
Indeling:
Begane grond:
Gemeenschappelijke entree, hal, nader in te richten ruimte
Dakterras: bereikbaar middels de open plaats
Interesse in dit unieke project? Neem dan contact op met ons kantoor!
Benieuwd wat jij kan lenen?
Kenmerken
Overdracht| Prijs | € 225.000,- k.k. |
| Aanvaarding | In overleg |
| Type object | Appartement |
| Soort bouw | Bestaande bouw |
| Bouwjaar | 1900 |
| Dakbedekking | Bitumineuze Dakbedekking |
| Type dak | Plat dak |
| Woonoppervlakte | 110 m2 |
| Inhoud | 350 m3 |
| Oppervlakte overige inpandige ruimten | 30 m2 |
| Oppervlakte externe bergruimte | 0 m2 |
| Oppervlakte gebouwgebonden buitenruimte | 20 m2 |
| Aantal kamers | 3 |
| Aantal slaapkamers | 1 |
| Ligging | In centrum |
| Type tuin | Zonneterras |
| Kwaliteit | Normaal |
| Oriëntering | Zuid |
| Heeft een achterom | Nee |
| Oppervlakte | 21 m2 |
| Energielabel | C |
| CV ketel | Nefit Proline |
| Warmtebron | Gas |
| Combiketel | Ja |
| Eigendom | Eigendom |