Bonthuis Vaartjes Makelaars
Bonthuis Vaartjes Makelaars

Een goed
gevoel bij

De Waterlelie 9
8064 HM Zwartsluis

€ 400.000,- k.k.

  • 130 m2
  • 182 m2
  • 5

    Omschrijving

    Ruimte, comfort en duurzaamheid in één.
    Welkom aan de Waterlelie 9 in Zwartsluis, een fijne tussenwoning met vrijstaande garage, gelegen in een rustige en groene woonwijk. Deze woning combineert comfort, ruimte en een gunstige ligging met een hoog woonplezier. Met vijf (slaap)kamers, een ruime uitbouw aan de achterzijde en een zonnige tuin op het zuidwesten, is dit een heerlijke plek voor gezinnen of doorstromers die nét wat ruimer willen wonen.

    RUIMTE EN COMFORT
    De woning biedt verrassend veel leefruimte. Op de begane grond vind je een lichte woonkamer, een moderne keuken en een praktische bijkeuken met onder andere de aansluiting voor de wasmachine. De tuindeur geeft direct toegang tot de tuin, een heerlijke plek om te ontspannen en te genieten van de zon tot in de avond.

    BIJZONDERHEDEN
    – 9 zonnepanelen + energielabel A
    – Airco’s aanwezig (koelen én verwarmen)
    – 5 (slaap)kamers
    – Rolluiken begane grond en verdieping
    – Zonnige achtertuin
    – Uitgebouwd + moderne keuken
    – Vrijstaande garage aanwezig

    INDELING
    Begane grond:
    Hal/entree met meterkast, toiletruimte met fontein en toegang tot de woonkamer met halfopen keuken. De pelletkachel in de woonkamer zorgt voor extra sfeer en warmte. Deze is niet alleen gezellig, maar ook energiezuinig en milieuvriendelijk, met een hoog rendement en een besparing op stookkosten. De begane grond is voorzien van een onderhoudsvriendelijke PVC-vloer. De keuken (vernieuwd in 2022) is van alle gemakken voorzien: een inductiekookplaat, afzuigkap, koel-/vriescombinatie, stoomoven, Quooker en een vaatwasser. Via de keuken is er toegang tot de bijkeuken en de achtertuin. De zonnige achtertuin ligt op het zuidwesten en biedt veel privacy en ruimte om te genieten. Dankzij het aanwezige zonnescherm kun je ook op warme dagen heerlijk beschut buiten zitten. De tuin is bereikbaar via een achterom, en achter de woning bevindt zich de vrijstaande garage met betonvloer, ideaal voor hobby, opslag of als werkplaats.

    Eerste verdieping:
    Op de eerste verdieping bevinden zich drie ruime slaapkamers en de badkamer. Aan de tuinzijde liggen twee slaapkamers en aan de voorzijde bevindt zich de masterbedroom, die is uitgerust met een praktische inloopkast. Twee slaapkamers zijn voorzien van laminaatvloeren. De badkamer is compleet uitgevoerd met vloerverwarming, een grote inloopdouche en vrijhangend tweede toilet en een dubbele wastafel met meubel.

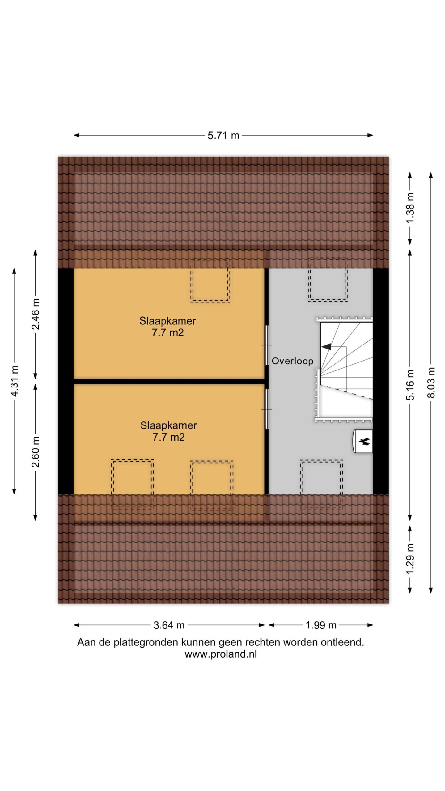
    Tweede verdieping:
    Via een vaste trap bereik je de tweede verdieping met de opstelplaats voor de cv-ketel (2022) en aansluiting voor wasmachine. Hier vind je nog twee extra (slaap)kamers en handige bergruimte achter de knieschotten.

    DUURZAAM EN ENERGIEZUINIG
    Deze woning heeft energielabel A en is uitstekend verduurzaamd. Zo liggen er 9 zonnepanelen op het dak, beschikt de woning over een moderne cv-installatie en zijn er airco’s aanwezig die zowel kunnen koelen als verwarmen – ideaal voor elk seizoen.

    Dankzij deze duurzame voorzieningen profiteer je van lage energielasten én kom je mogelijk in aanmerking voor extra hypotheekruimte. Bij aankoop van een woning met energielabel A kun je namelijk vaak een hoger bedrag lenen bij de hypotheekverstrekker, of profiteren van aantrekkelijke rentekortingen.

    Daarnaast is er een waterontharder aanwezig, wat zorgt voor zachter water, minder kalkaanslag en een langere levensduur van je apparatuur.

    LIGGING
    De woning ligt in een rustige, groene buurt met veel privacy en voldoende speelgelegenheid voor kinderen. Scholen, sportverenigingen en winkels bevinden zich op loop- en fietsafstand. Ook de ligging is ideaal: binnen 15 à 25 minuten ben je in Meppel of Zwolle. Zwartsluis heeft daarnaast twee basisscholen én voortgezet onderwijs (Agnieten College), wat deze locatie extra gezinsvriendelijk maakt.

    AANVAARDING:
    In overleg

    BEZICHTIGING
    Deze woning moet je écht gezien hebben. Bonthuis Vaartjes Makelaars laat je graag kennismaken met de Waterlelie 9.

    Benieuwd wat jij kan lenen?

    Kenmerken

    Overdracht
    Prijs€ 400.000,- k.k.
    AanvaardingIn overleg
    Bouw
    Type objectWoonhuis
    Soort bouwBestaande bouw
    Bouwjaar1982
    DakbedekkingPannen
    Type dakZadeldak
    IsolatievormenDakisolatie, Muurisolatie, Vloerisolatie, HR glas
    Oppervlaktes en inhoud
    Perceeloppervlakte182 m2
    Woonoppervlakte130 m2
    Inhoud444 m3
    Oppervlakte overige inpandige ruimten0 m2
    Oppervlakte externe bergruimte34 m2
    Oppervlakte gebouwgebonden buitenruimte0 m2
    Indeling
    Aantal kamers6
    Aantal slaapkamers5
    Locatie
    LiggingAan rustige weg, In woonwijk, Vrij uitzicht
    Tuin
    Type tuinAchtertuin
    KwaliteitNormaal
    OriënteringZuidwest
    Heeft een achteromJa
    Oppervlakte45 m2
    Energieverbruik
    EnergielabelA
    CV ketel
    CV ketelIntergas
    WarmtebronGas
    CombiketelJa
    EigendomEigendom

    Ligging