Bonthuis Vaartjes Makelaars
Bonthuis Vaartjes Makelaars

Een goed
gevoel bij

Zilverbeek 37
8064 JD Zwartsluis

€ 485.000,- k.k.

  • 168 m2
  • 250 m2
  • 5

    Omschrijving

    Aan de Zilverbeek 37 in Zwartsluis staat deze royale helft van een dubbel woonhuis met garage, opbouw, oprit en een fijne tuin. De woning ligt in de waterrijke wijk Barsbeek en biedt je elke dag het gevoel van ruimte en vrijheid. Vanuit de woonkamer heb je een prachtig uitzicht over het open vaarwater en de naastgelegen landerijen. Bovendien bestaat er wellicht een mogelijkheid om je eigen bootje in de woonwijk aan te leggen (meer informatie via de gemeente) om binnen enkele minuten uit te varen naar het Zwarte Water of de meren van Noordwest-Overijssel.

    WONEN
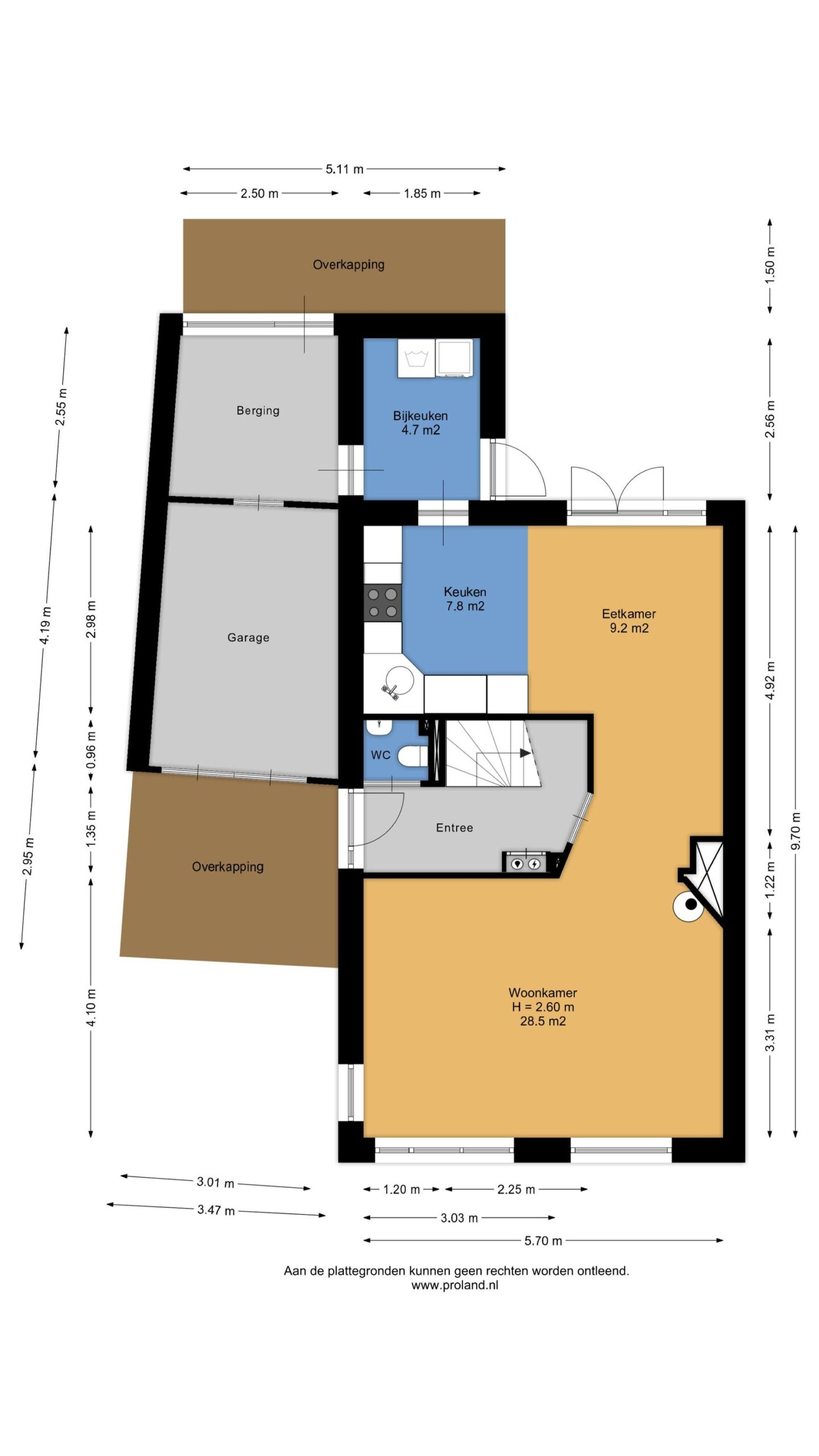
    De royale L-vormige living is een sfeervolle plek waar je direct een gevoel van thuis ervaart. De massieve eiken vloer en houtkachel zorgen voor warmte en karakter. De open eetkeuken – voorzien van inbouwapparatuur (vaatwasser, inductie kookplaat, oven en koel/vries-combinatie) in een hoekopstelling – grenst via dubbele tuindeuren aan de achtertuin. Handig detail: de keuken is met een schuifwand af te sluiten van de woonkamer. Aansluitend vind je de bijkeuken, met de aansluiting voor de wasmachine. Vanuit hier bereik je binnendoor de garage. Deze garage is opgesplitst in een berging en een lichte (werk)ruimte dankzij de aanwezige ramen en deur.

    BIOMASSA-KETEL
    In de garage is tevens de opstelplaats voor de biomassaketel. Deze ketels geven de mogelijkheid op een duurzaam en economisch verantwoorde manier te verwarmen. Een biomassaketel is een verwarmingssysteem dat gebruik maakt van organische brandstoffen zoals bijvoorbeeld houtblokken, pellets of houtsnippers. Een ideale vervanging voor de CV-ketel

    SLAPEN EN WERKEN
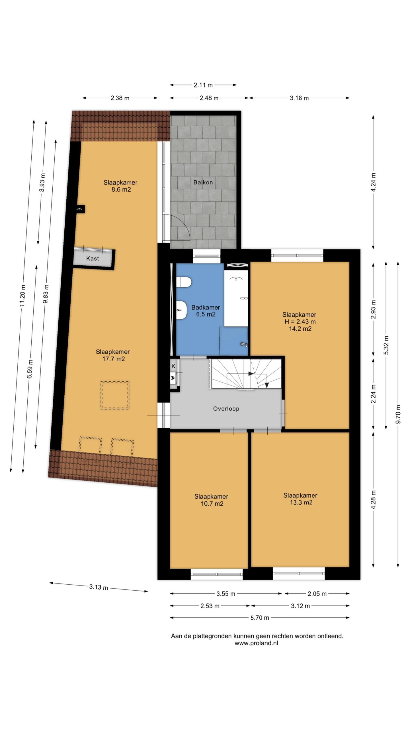
    Op de eerste verdieping is verrassend veel ruimte gecreëerd door de opbouw boven de garage. Hier vind je een royale kantoor/ relaxruimte van maar liefst 24 m², die desgewenst eenvoudig als extra slaapkamer kan worden ingericht. En alsof dat nog niet genoeg is: vanuit deze ruimte stap je zo het grote balkon op – ideaal voor een koffiepauze in de zon of een frisse neus tijdens het thuiswerken. Daarnaast zijn er drie ruime slaapkamers van circa 11, 14 en 15 m². De badkamer is uitgerust met een ligbad, douchecabine, wastafel en een tweede toilet.

    De tweede verdieping is voorzien van een dakkapel en Velux-ramen, waardoor ook hier volop licht en ruimte is. Hier bevindt zich de vijfde slaapkamer of werkruimte, naast een ruime voorzolder met de opstelling van de cv-installatie. Extra opbergruimte is er meer dan genoeg, want achter de knieschotten kun je gemakkelijk al je spullen kwijt.

    BUITENLEVEN
    De achtertuin heeft een gunstige zonligging en biedt volop mogelijkheden om te ontspannen. Bovendien staat hier een houten ruimte die je naar eigen wens kunt gebruiken – bijvoorbeeld als praktische buitenberging, of juist als sfeervolle plek voor een sauna om heerlijk tot rust te komen. Aan de voorzijde geniet je van een uitzicht over het vaarwater – een unieke combinatie die je niet vaak tegenkomt.

    BIJZONDERHEDEN:
    – Mooie ligging met uitzicht over vaarwater
    – 5 slaapkamers, met mogelijkheid voor een zesde
    – Voorzien van een waterontharder
    – Energielabel A+ en 14 zonnepanelen

    ZWARTSLUIS
    Zwartsluis, goed bereikbaar en dé woonplek voor de natuur- en watersportliefhebber. Gelegen in de kop van noordwest Overijssel tussen Hasselt, Genemuiden en Vollenhove. De plaatsen Zwolle en Meppel zijn in ongeveer 15 autominuten te bereiken en als je naar de randstad moet is er een goede en snelle verbinding naar de rijksweg A6. In 5 kwartier rij je dan ook met de auto naar Amsterdam. Zwartsluis is de watersportplaats die toegang biedt naar het schitterende natuur- en merengebied van Overijssel, de Weerribben en De Wieden. Daarmee is Zwartsluis bij uitstek dé woonplek voor de natuur- en watersportliefhebber.

    FIJN WONEN
    Kortom een fijn huis met veel leefruimte in een prachtige woonomgeving. Maak nu een afspraak met Bonthuis Vaartjes Makelaars en kom zelf ervaren hoe fijn je hier kunt wonen!

    Benieuwd wat jij kan lenen?

    Kenmerken

    Overdracht
    Prijs€ 485.000,- k.k.
    AanvaardingIn overleg
    Bouw
    Type objectWoonhuis
    Soort bouwBestaande bouw
    Bouwjaar1998
    DakbedekkingPannen
    Type dakSchilddak
    IsolatievormenDakisolatie, Muurisolatie, Vloerisolatie, Dubbelglas, Volledig geïsoleerd, HR glas
    Oppervlaktes en inhoud
    Perceeloppervlakte250 m2
    Woonoppervlakte168 m2
    Inhoud684 m3
    Oppervlakte overige inpandige ruimten19 m2
    Oppervlakte externe bergruimte6 m2
    Oppervlakte gebouwgebonden buitenruimte28 m2
    Indeling
    Aantal kamers7
    Aantal slaapkamers5
    Locatie
    LiggingAan rustige weg, In woonwijk, Vrij uitzicht, Beschutte ligging
    Tuin
    Type tuinAchtertuin
    KwaliteitNormaal
    OriënteringZuidwest
    Heeft een achteromNee
    Oppervlakte77 m2
    Energieverbruik
    EnergielabelA+
    CV ketel
    CV ketelItho
    WarmtebronGas
    CombiketelJa
    EigendomEigendom

    Ligging